Overfører data ...

Velkommen til Tveita bedriftsområde

SØRLIE
Tvetenveien 160
0671 OSLO
  
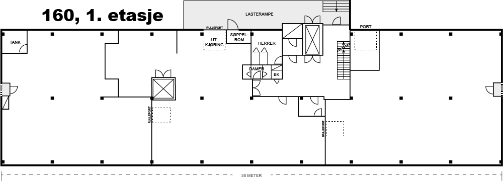
Nr. 160
Blokker
Tvetenveien 160-4
Tvetenveien 160-3
Tvetenveien 160-2
Tvetenveien 160-1
Tvetenveien 160-U

Logg inn