Overfører data ...

Velkommen til Tveita bedriftsområde

CLEMCO NORGE
Postboks 104 Tveita
0617 OSLO
  
Nr. 156
CHRISTIAN BERNER
Postboks 8, TVEITA
0617 OSLO
  
Nr. 156
Blokker
Tvetenveien 156-4
Tvetenveien 156-3
Tvetenveien 156-2
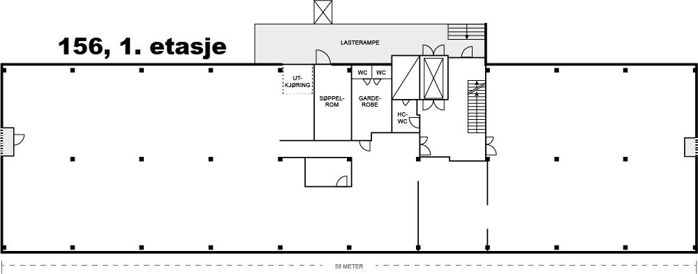
Tvetenveien 156-1
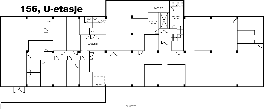
Tvetenveien 156-U

Logg inn